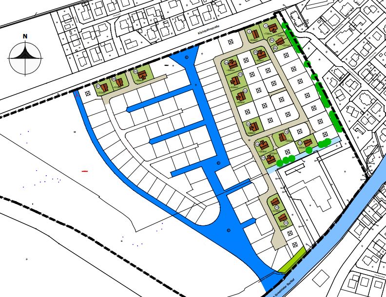
Baugrundstücke Greetsieler Grachten II
Baugrundstücke Greetsieler Grachten II (Einheimische)
Die Niedersächsische Landgesellschaft (NLG) bietet Bauwilligen, die dauerhaft in Greetsiel ihr Eigenheim errichten möchten, eine große Auswahl an attraktiven Baugrundstücken an. Die Preise für die Baugrundstücke liegen für „einheimische Bewerber/innen“ bei 99 €/m². Die Grundstücke haben eine Größe von ca. 328m² bis 739m².
Wer sich für ein Baugrundstück interessiert, kann sich hier über die noch freien Baugrundstücke informieren und die entsprechenden Bewerbungsunterlagen an Bauamt@krummhoern.de senden.
Diese Seite wird aktualisiert, sobald es neue Informationen gibt (Stand 02.2026)
Gestaltungsentwurf Grachten II 02-2026
Preisliste Einheimischen Grachten II 02-2026
Greetsieler-Grachten-II-Einheimische-Interessenbekundung-1-1 NEU
